陽光帶海濱城二期室內軟裝設計動態
發布人:Webmaster發布時間:2016-07-13閱讀數 (902)
陽光帶·海濱城位于濱海大道以北,沙河西路西側,屬于學會中灣填海區。項目東側是永無遮擋的沙河高爾夫球場綠色景觀,西側有規劃中十幾萬平方米的大型濱海城市公園,南側是深圳灣,西北側有深圳大學和虛擬大學園區。項目既處于繁華都市,又與鬧市保持一個合理的距離。如此地段與環境,在深圳實屬罕見。
“彩虹”主題的創新建筑規劃:小區以大面積玻璃窗、大出挑弧線陽臺、通透的陽臺攔板、強烈的虛實對比塑造純凈、明亮輕盈的海濱高檔住宅形象;屋頂構架,以彩虹的七彩顏色組成,外立面明快活潑富有生氣;小區中央花園南北距離大達200米,東西小距離70米,以低的建筑密度爭取了大的綠地面積。此布局使絕大多數住戶享受了不可多得的高爾夫景觀與海景景觀。
.jpg)
陽光帶海濱城二期室內軟裝設計外景圖
小區充分利用周邊景觀優勢,90%以上的住宅具有南向采光面,85%以上的住宅擁有深圳灣海景或西側永久公園景觀或小區大中心綠地景。戶型設計上,真正做到“、零缺陷”,早在方案論證階段,招商地產就組織過多場由準業主、專家組成的“戶型批判會”,確保戶型百分百。戶門為雙扇子母門,廳房方正,實用率高,功能分區明顯;廳房低窗臺凸窗設計,視野開闊。
周邊配套:
幼兒園:南山外國語幼兒園
中小學:南國外國語學校小學部
大學:深圳大學
商場:海雅百貨,歲寶百貨,人人樂超市,沃爾瑪
醫院:南山醫院,蛇口聯合醫院
郵局:科技園郵局
銀行:中國銀行
其他:凱濱斯基酒店
小區內部配套:小區內設有空中花園、幼兒園、游泳池、健身房、停車場、兒童游樂場、閱覽室、棋牌室、洗衣店、美容美發等。
.jpg)
.jpg)
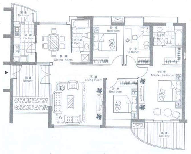
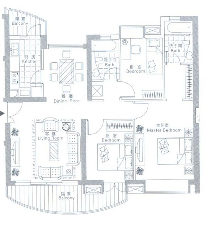
陽光帶海濱城二期室內軟裝設計戶型圖
.jpg)
.jpg)
.jpg)
.jpg)
陽光帶海濱城二期室內軟裝設計樣板房