華潤深圳灣·悅府室內軟裝設計新動態
發布人:Webmaster發布時間:2016-11-25閱讀數 (817)
華潤深圳灣·悅府位于濱海大道與科苑路交匯處,處于城市中心位置,毗鄰深港西部通道,坐擁深圳、香港雙核心, 同時還擁有極致稀缺的三重景觀。目前所處區域的生活、教育、醫療服務定位均已兌現,如凱賓斯基酒店、保利文化廣場、香港大學深圳醫院等。同時項目靠近海岸城商圈、寶能All City等,生活配套一應俱全。在這里,可享受城市核心多元化、國際化的生活體驗。
.jpg)
.jpg)
.jpg)
華潤深圳灣·悅府室內軟裝設計外景圖
華潤深圳灣的住宅室內設計旨在打造精益求精,以匠人之心極盡雕琢。聘請了國際頂尖的設計團隊,以人的體驗為尺度,盡善對待每一個生活細節。無論是精裝品質還是物業服務,都力求,傳遞出悅府令人愉悅的雅致之美。從健康、休閑、運動、商務、居住、自然等角度打造灣區多元生活,以精益求精的態度雕琢生活細節,將灣區生活的魅力及華潤追求人文的情懷映射到生活中,構筑灣區生活的人居范本。
周邊配套:
商場:海岸城、天利名城、太古城,君尚百貨(規劃中);
學校:南山區第二外國語學校、南山外國語學校、北師大附中;
醫院:香港大學附屬醫院醫院、南山人民醫院;
銀行:華潤銀行、農業銀行、中信銀行、中國銀行、招商銀行、工商銀行、建設銀行、平安銀行;
飲食:駒鮑、小南洋、凱賓斯基酒店;
休閑娛樂:華潤深圳灣體育中心、保利劇院、深圳灣公園、紅樹林濕地公園、科技館(規劃中)、藝術中心等。
內部配套:
商業:約8萬平米商業
公園:松坪山公園
.jpg)
.jpg)
.jpg)
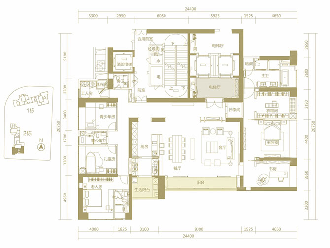
華潤深圳灣·悅府室內軟裝設計戶型圖
.jpg)
.jpg)
.jpg)
華潤深圳灣·悅府室內軟裝設計樣板房