中熙君南山室內軟裝設計新動態
發布人:Webmaster發布時間:2016-12-16閱讀數 (842)
中熙君南山項目,是中熙地產繼中熙香繽廣場、香緹灣、香繽山等項目后,藉精工品質締造又一全新力作,定位南山城市中心精品生態住宅社區。
.jpg)
.jpg)
中熙君南山室內軟裝設計外景圖
項目位于南山東濱路與南光路交界處西北側,大南山腳下,前海、后海及蛇口交匯處,塑造城市與山林的融合。社區利用首層架空層打造深圳首個多功能精裝泛會所,一站式解決全部的休閑需求,規劃有3層地下停車庫,依坡地而建,打造深圳首個藝術陽光車庫,車位比接近1:1,私享舒適與輕松、品質與優雅、健康與自然的山居生活方式。
周邊配套:
中學:南海中學、學府中學、北師大附中、育才三中、育才二中、蛇口中學、荔香中學;
小學:南山荔林試驗小學、南海小學、南油小學、育才一小、育才二小、育才三小、育才四小;
幼兒園:城市山林幼兒園、南山區信和紅黃藍幼兒園、登良幼兒園、南油幼兒園、博雅午托園、晨暉少兒藝教中心。
綜合商場:沃爾瑪、花園城中心、信和購物廣場、新南油文化廣場、海上世界、海岸城購物中心、南山茂業百貨、南山書城、寶能太古城、福士廣場、永新時代廣場、瑞思中心、新南油大廈、美年廣場、陽光TDI、華聯城市綜合體
銀行:中國郵政、交通銀行、中國銀行、平安銀行
醫院:南山區人民醫院、蛇口人民醫院、瑞士瓦萊體驗中心、荔林社區健康服務中心
公園:大南山、小南山2大山體;大南山公園(約352萬平)、小南山公園(規劃用地100萬平)、荔林公園(約60萬平)、南油購物公園(約40萬平)、四海公園(約15萬)、青青世界(約20萬)6大公園。
文體配套:深圳灣體育公園,15公里濱海長廊、南山藝術博覽館、南山文體中心、保利劇院。
公 園:西通和諧公園、 荔林公園、 荔林公園(沿湖路店)
學 校:南海中學、 南海小學
.jpg)
.jpg)
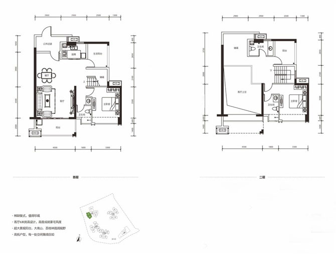
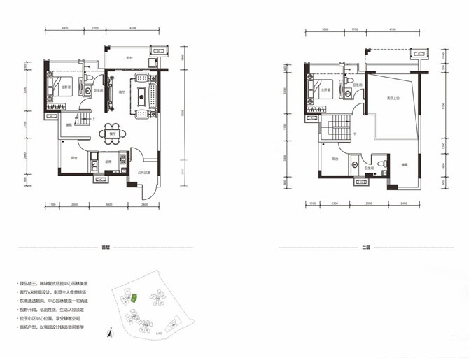
中熙君南山室內軟裝設計戶型圖
.jpg)
.jpg)
.jpg)
中熙君南山室內軟裝設計樣板房