深圳中信紅樹灣豪宅軟裝設計新資訊
發布人:Webmaster發布時間:2015-09-28閱讀數 (971)
深圳中信紅樹灣項目地塊位于深圳市南山區填海區域,沙河東路、濱海大道和白石路環繞它的周邊。東面是擬建中的城市中央花園,西面毗鄰郁郁蔥蔥的沙河高爾夫球場,南面眺望深圳灣水天一色,東北面遠觀世界之窗、錦繡中華、歡樂谷。自然景觀和人文景觀豐富,地理位置十分獨特,被譽為未來城市的“地王”。它的建設和開發不但受到市委、市政府的重視,而且受到廣大深圳市民廣泛關注。這塊地在2001年底的土地拍賣會上創下全國單幅土地高價。

項目依托獨特的區位優勢和自然資源,打造深圳頂級的高爾夫物業。以生態、健康為主題,營造濱海特色的庭院景觀,做到既有外部自然景觀又有內部庭院風光,塑造品質高尚、健康人居、尊貴典雅的產品形象,在住宅市場的浮躁中不失傳統以求舒適大度,而在居住觀念的傳統中則力爭創新以求脫穎而出,引領居住潮流,升華現代居住文化,凸現中信樓盤的無盡現代高尚文化內涵。

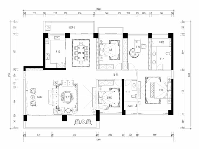
深圳中信紅樹灣戶型圖
配套信息:
周邊商業:理家百貨
周邊公園:濱海生態公園,中央公園(擬建)
周邊醫院:深圳沙河醫院
周邊學校:南山外國語學校
周邊娛樂:會所、沙河高爾夫球場、世界之窗、錦繡中華、歡樂谷。
交通狀況:濱海大道,28,43,54,58,深灣一路,白石二道,沙河東路,白石路
例外軟裝深圳中信紅樹灣豪宅軟裝設計作品