【新簽約】深圳東海花園室內軟裝設計
發布人:Webmaster發布時間:2016-09-20閱讀數 (2111)
東海花園二期是位于深圳福田區的一個高檔住宅小區,會所設施各式俱全,大型露天園林式游泳池、罕有室內恒溫游泳池、水上兒童樂園、上海飯店及潮州酒樓、羽毛球場、室外網球場、壁球場、桌球室及大型健身中心、咖啡酒廊、圖書館、兒童耍樂中心等。周邊有東海公園,約42,000平方米,擬辟作湖泊園林式主題公園,規劃中還擬建立一個大型園林式購物中心、兩間國際幼兒園、一間外語小學、外語小學和幼兒園、深圳高級中學。
深圳東海花園室內軟裝設計外景圖
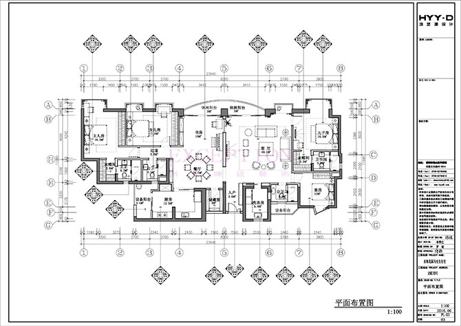
深圳東海花園室內軟裝設計戶型圖

點擊咨詢

0755-82567805